- Woonoppervlakte
- Circa 171 m²
- Perceeloppervlakte
- Circa 362 m²
- Bouwjaar
- Gebouwd in 1994
- Aantal kamers
- 6 kamers (5 slaapkamers)
de locatie is ideaal: op loopafstand vindt u scholen, supermarkten, sportfaciliteiten en het gezellige dorpscentrum van boskoop, waar u terecht kunt voor een divers aanbod aan winkels en horecagelegenheden. het openbaar vervoer, met het ns-station en meerdere bushaltes in de buurt, is uitstekend bereikbaar. ook de uitvalswegen richting onder andere de n207, n455 en a12 liggen dichtbij. de wijk is rustig, kindvriendelijk en recentelijk vernieuwd met nieuwe bestrating en veel aandacht voor groen.
indeling:
begane grond:
bij aankomst ziet u direct de voortuin met een eigen oprit en parkeergelegenheid voor twee auto’s. u heeft hier tevens toegang tot de woning en de inpandige garage.
via de entree, waar zich ook de meterkast bevindt, heeft u toegang tot de garage, het toilet, de trapopgang naar de eerste verdieping, een praktische bijkeuken met aansluitingen voor wasmachine en droger, én de royale woonkamer met open keuken.
de sfeervolle woonkamer is heerlijk ruim en voorzien van een schuifpui naar de tuin. de houten vloer en de lichte, beige wanden zorgen voor een warme uitstraling. de open haard maakt het geheel compleet; een plek om tot rust te komen na een lange dag.
aansluitend bevindt zich de open keuken in een stijlvolle groene kleurstelling. hier treft u inbouwapparatuur, waaronder een inductiekookplaat met geïntegreerde afzuiging, koel-/vriescombinatie, combi-oven en een vaatwasser. dankzij de vele ramen is de keuken opvallend licht en een heerlijke plek om te koken en te genieten.
eerste verdieping:
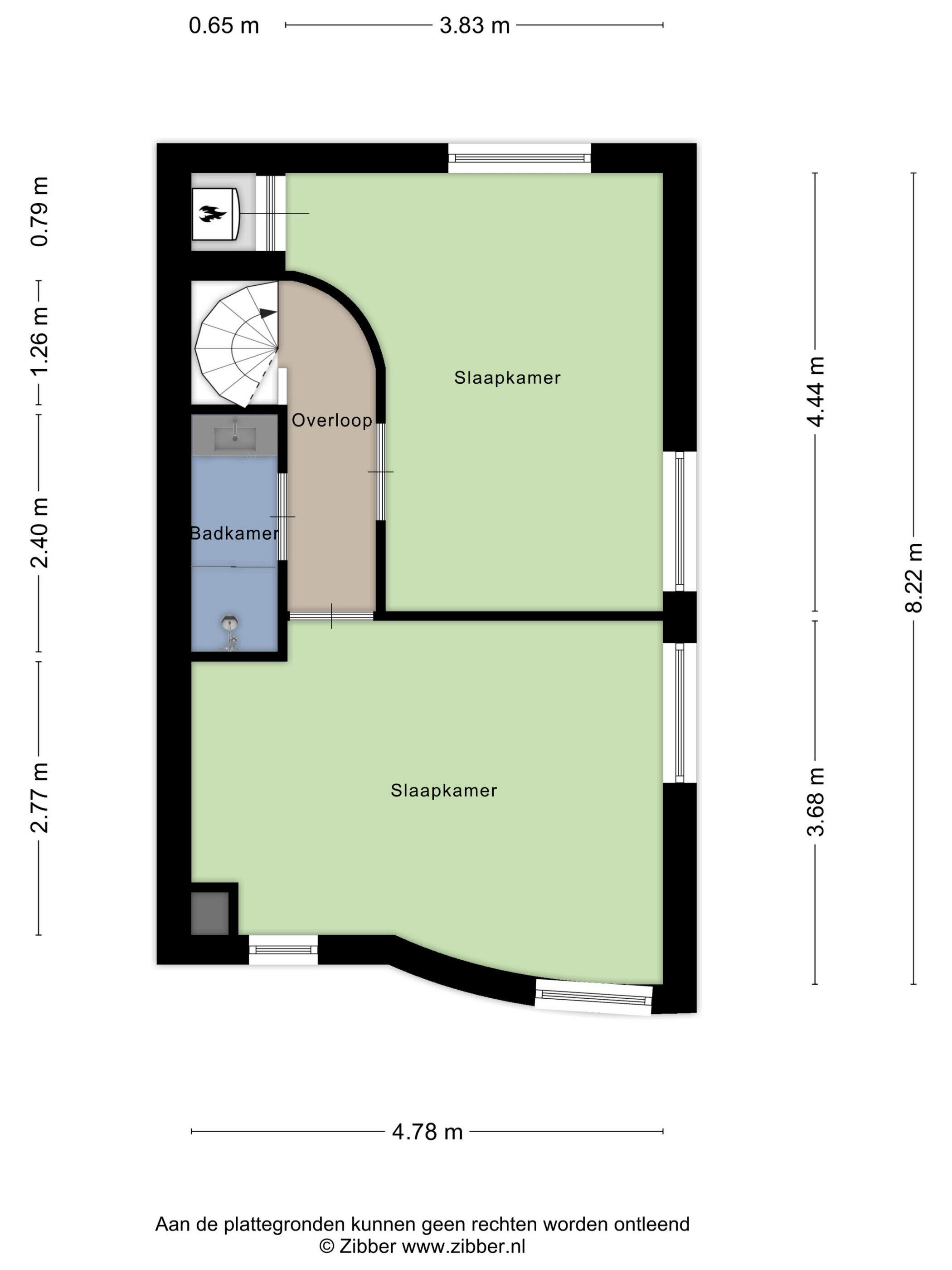
de eerste verdieping bereikt u via een fraaie wenteltrap. hier bevinden zich drie volwaardige slaapkamers, waarvan één momenteel in gebruik is als inloopkast. de badkamer is ingericht in een moderne zwart-wit stijl en beschikt over een dubbele wastafel, ligbad, aparte douche en een tweede toilet.
tweede verdieping:
op de bovenste etage vindt u nog eens twee ruime slaapkamers en een tweede badkamer, uitgerust met een doucheruimte en wastafelmeubel.
buitenruimte:
de achtertuin, gunstig gelegen op het zuiden, biedt volop rust en zon. u vindt hier een sfeervol zitgedeelte en achterin de tuin een houten vlonder direct aan het water – een ideale plek om ’s ochtends te genieten van een kop koffie of ’s avonds te ontspannen met een drankje. daarnaast is er een compacte berging aanwezig voor extra opslagruimte.
bijzonderheden:
• gebruiksoppervlakte 171 m2
• energielabel b
• riante woonkamer met open keuken
• vijf ruime slaapkamers
• inpandige garage
• parkeergelegenheid voor op eigen terrein voor 2 auto’s
deze woning combineert ruimte, comfort en een fijne ligging op een manier die u zelden tegenkomt. bent u benieuwd of dit uw nieuwe thuis kan worden? maak dan zeker een afspraak voor een bezichtiging. u bent van harte welkom.
Overdracht
- Koopsom
- € 695.000 k.k.
- Status
- Beschikbaar
- Aanvaarding
- In overleg
Bouw
- Object type
- Herenhuis, hoekwoning
- Soort bouw
- Bestaande bouw
- Bouwjaar
- 1994
- Soort dak
- Zadeldak
Oppervlakte en inhoud
- Woonoppervlakte
- 171 m²
- Perceeloppervlakte
- 362 m²
- Inhoud
- 634 m³
- Overige inpandige ruimte
- 9 m²
- Externe bergruimte
- 6 m²
- Gebouwgeb. buitenruimte
- 1 m²
Indeling
- Aantal kamers
- 6 kamers (5 slaapkamers)
- Aantal woonlagen
- 3 woonlagen
Energie
- Energielabel
- B
- Energielabel registratie
- 31-12-2020
- Verwarming
- Cv-ketel
Buitenruimte
- Ligging
- Aan water, in woonwijk
- Tuin
- Achtertuin, voortuin
- Afmetingen achtertuin
- 166 m² (17.5 meter diep en 9.5 meter breed)
- ligging tuin
- Gelegen op het zuiden
Bergruimte
- Schuur / berging
- Vrijstaande houten berging
Garage
- Soort garage
- Inpandig
- Capaciteit
- 1 auto
Parkeergelegenheid
- Soort parkeergelegenheid
- Op eigen terrein
Energieverbruik in Boskoop
Energielabel deze woning
Energielabel B
Publicatie energielabel: 31-12-2020
Stroomverbruik per jaar
(Gemiddelde hoekwoning in Boskoop)
Gasverbruik per jaar
(Gemiddelde hoekwoning in Boskoop)
* Cijfers zijn afkomstig van het CBS en bedoeld als indicatie en kunnen verschillen voor deze woning
Indicatie hypotheeklasten
Eigen inleg:
Spaargeld / overwaarde
Rente:
Laagste 10-jaars rente
Laagste 10-jaars rente
2,75% - Centraal Beheer Groen... - NHG
3,05% - Centraal Beheer Groen... - 80%
Laagste 20-jaars rente
3,52% - Syntrus Achmea Groen B... - NHG
3,79% - Syntrus Achmea Groen B... - 80%
Laagste 30-jaars rente
3,64% - Syntrus Achmea Groen B... - NHG
3,88% - Syntrus Achmea Groen B... - 80%
Hypotheek:
Bruto maandlasten: € 0 p/m
Netto maandlasten: € 0 p/m
Hoe berekenen we dit?
Het rentepercentage is gebaseerd op de laagste 10-jaars vaste rente voor één hypotheekdeel. De vermelde rente (3.05% zonder NHG) is gecontroleerd op 13-10-2025. Deze berekening is gebaseerd op een annuïteitenhypotheek die volledig wordt afgelost, waarbij de maandlasten gedurende de gehele looptijd gelijk blijven. De werkelijke rente en netto maandlasten kunnen variëren, afhankelijk van uw persoonlijke situatie en de hypotheekverstrekker. Raadpleeg een financieel adviseur voor een nauwkeurige berekening en advies. Aan deze berekening kunnen geen rechten worden ontleend; het dient enkel als indicatie.
Documentatie
Kadastrale kaart
Leefomgeving
Plattegronden PDF
BAG uittreksel
Aanslagbiljet-gemeentebelastingen
Lijst-van-zaken
Vragenlijst
Akte-van-levering
Funda brochure
Brochure
Bekijk onze website
Bezichtiging
Bod uitbrengen
Waardebepaling
Zoekopdracht
Alles downloaden
Zonnegrenzen bekijken
Inwoners in Boskoop
Cijfers voor postcodegebied 2771
- Totaal aantal inwoners
- 16130 inwoners
- Mannen
- 50%
- Vrouwen
- 50%
Inwoners in Boskoop
Cijfers voor postcodegebied 2771
- tot 15 jaar
- 16%
- 15 tot 25 jaar
- 13%
- 25 tot 35 jaar
- 24%
- 45 tot 65 jaar
- 28%
- 65 en ouder
- 20%
Huishoudens in Boskoop
Cijfers voor postcodegebied 2771
- Eenpersoons zonder kinderen
- 33%
- Meerpersoons zonder kinderen
- 32%
- Huishoudens zonder kinderen
- 65%
Huishoudens in Boskoop
Cijfers voor postcodegebied 2771
- Huishoudens met één kind
- 6%
- Huishoudens met meerdere kinderen
- 29%
- Huishoudens met kinderen
- 35%
Woningen in Boskoop
Cijfers voor postcodegebied 2771
- Woningen voor 1945
- 19%
- Woningen tussen 1945 en 1965
- 13%
- Woningen tussen 1965 en 1975
- 20%
- Woningen tussen 1975 en 1985
- 19%
- Woningen tussen 1985 en 1995
- 10%
Woningen in Boskoop
Cijfers voor postcodegebied 2771
- Woningen tussen 1995 en 2005
- 9%
- Woningen tussen 2005 en 2015
- 6%
- Woningen na 2015
- 5%
- Huurwoningen
- 40%
- Koopwoningen
- 60%
Overige in Boskoop
Cijfers voor postcodegebied 2771
- Gemiddelde WOZ waarde
- € 263.000,-
- Personen onder de 65 met uitkering
- 5%
Overige in Boskoop
Cijfers voor postcodegebied 2771
- Adressen per km²
- 889
- Stedelijkheid (schaal 1 op 5)
- 40%



Indien u vragen heeft of u wilt een bezichtiging inplannen, dan kunt u gebruik maken van het formulier hiernaast. Er zal daarna op korte termijn contact met u worden opgenomen.
Euromarkt 3
2408 BA, Alphen aan den Rijn
0172 - 234 406 info@houtmandevogel.nl www.houtmandevogel.nlContact opnemen
Over Houtman & de Vogel
Bent u van plan om uw woning te verkopen? Zoek niet verder! Bij Houtman & de Vogel profiteert u van ervaren makelaars met uitgebreide kennis van de lokale woningmarkt. Ons doel is om de best mogelijke verkoopprijs en voorwaarden voor onze klanten te realiseren. Benieuwd hoe we dat doen? Maak een afspraak en ontdek wat wij voor u kunnen betekenen.
Ons kantoor is gevestigd op de Euromarkt 3 in Alphen aan den Rijn. Het heeft een professionele uitstraling en is voorzien van opvallende tv-schermen in de etalage waar uw woning wordt gepresenteerd. U kunt ons eenvoudig bereiken en er is gratis parkeergelegenheid voor de deur!
Houtman & de Vogel staat bekend om zijn actieve en resultaatgerichte aanpak, gekenmerkt door een no-nonsense mentaliteit. Wij zijn 6 dagen per week en 16 uur per dag bereikbaar. U kunt bij ons terecht voor bezichtigingen of een (gratis) waardebepaling, niet alleen tijdens kantooruren, maar ook in de avonduren en op zaterdag.

Nieuwste reviews
-
Zijde 64
Het contact en de begeleiding verliep uitermate plezierig en het advies wat wordt gegeven is uitstekend. Deze makelaar is een begrip in de r...
-
Zonnedauw 90
Heeft mijn verwachtingen overtroffen. Heldere uitleg. To the point.Ondersteuning vanuit kantoor ook prima.
-
Assumburg 106
Een geweldige makelaar! Hij heeft het huis van onze overleden moeder met enorm veel respect en zorg verkocht. Alles is perfect geregeld, tot...